| Allt Nytt | Kalender | Racerbanor | Arrangörer | Forum | Varvtider/Loggar |

![]() |
SÄLJES
SÄLJES: SÅLT Byggbord
|
582 besök totalt |
|
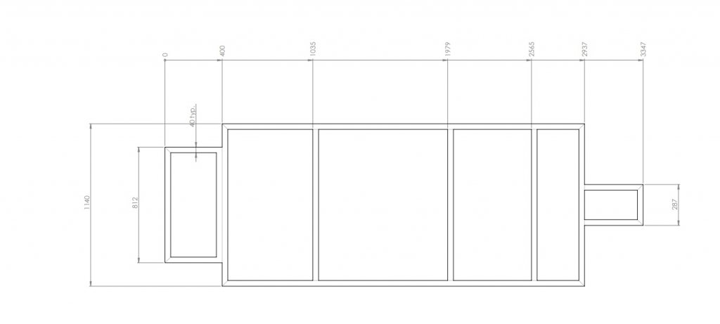
SÄLJES: SÅLT Byggbord
Nu har byggbordet gjort sitt och kanske kan komma till nytta för någon annan om intresse finns. Det är uppbyggt av 80x40x4 mm profiler med mått enligt bifogad ritning och har justerbara fötter för att kunna ställas i våg. Det har fungerat alldeles utmärkt till att svetsa ihop mitt GT40 chassie och bör fungera bra som bas till div. andra byggen med efter viss modifiering. Enbart materialpriset ligger idag på ca 4 800 - 5 200 kr exkl. spill och svetsning. Vikt ca 135 kg. Prisidé: SÅLT kr Bordet finns strax söder om Göteborg. Skickas ej.
_________________ Fredrik Pousard Se7en MNR R1 2012 - SÅLD SVKG 369 Locost Sweden 197 http://www.youtube.com/channel/UCGX4w6Luh1A4tRKNuOBDWcg/videos?view=0&flow=grid |
![]() |
SÄLJES
SÄLJES: SÅLT Byggbord
|
582 besök totalt |

