| Allt Nytt | Kalender | Racerbanor | Arrangörer | Forum | Varvtider/Loggar | 

![]()  | 
		
			Andra projekttrådar
			 
			
			Planlösning i garaget
		 | 
		1 besök senaste veckan (1789 totalt) | 
| 
			 
							Planlösning i garaget                                        
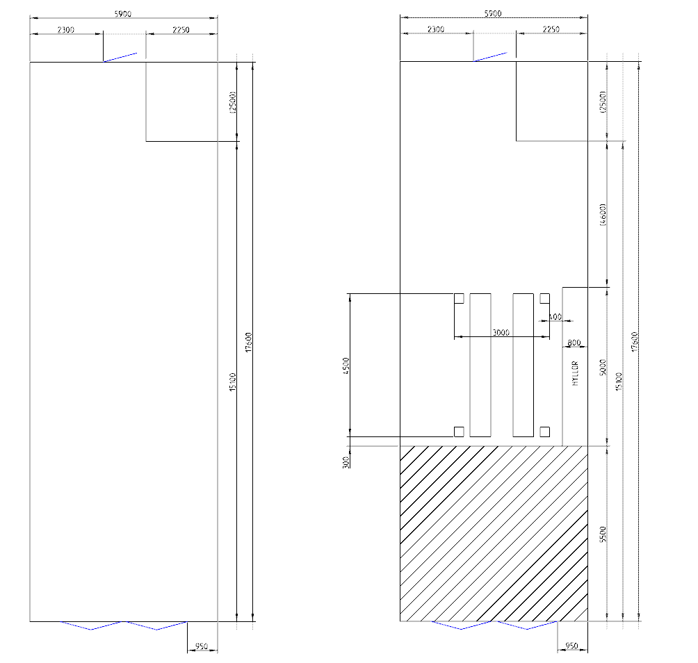
					Tjena! Visste inte riktigt vart jag skulle placera tråden så börjar här, går ju att flytta. Jag håller på att planera om i garaget, har ändå rätt stort garage på drygt 100m2, 17,6x5,9 mäter det och har väl 6-8m i takhöjd. Lite bilder från garaget går nog att beskåda i denna tråd: https://rejsa.nu/forum/viewtopic.php Det är dags att tömma ett gammalt garage och där blir den fyrpelarlift över som jag tänkte försöka få in i detta garage istället. Toalett är uppe till höger och vi har lite hyllor uppe på toaletten. Det ska planeras in lite arbetbänk, svetsbänk, skåp och det finns massor med hyllor till om man vill. De hyllorna till höger täcker upp det som finns i hyllorna idag med marginal. Tanken är att ställa liften i mitten och i det sträckade området ha bilar som går att köra. Liften står lite off-center i hopp om att det ska gå att ha en bil hela vägen till väggen i vänster. Funderar på om man skulle typ skyffla undan bubblakarossen i hörnan mellan liften och toaletten. Även 306an får plats där som är ett långtidsprojekt vi inte arbetar med. Skulle man arbeta med den kan man alltid dra ut den lite från väggen. Tankar och idéer, erfarenheter?  
						_________________ Alex H-e-d-s-t-r-ö-m Tesla Model Y Performance -22 Peugeot 306 GTi -97 195hk@7900 195Nm@6500 VW 1500 baja -69 ( www.instagram.com/alexbajabug/ )  | 
	||||
| 
			 
							
							Med den takhöjden skylla jag försöka få till loft/entresol för förvaring, så att ingen golvyta går åt till sånt som långtidsförvaring.kanske till och med så att man kan lyfta undan karosser/bilar som står till sig....
						 
					_________________ Tord Ringenha11  | 
	||||
| 
			 
							
							Kan fyrpelaren stå själv och vara flyttbar (olastad)?
 
					Det minskar ju ångesten över att placera den lite fel initialt (eller kunna ha den mot vägg om det är parkeringslyft och flytta ut den om den ska vara arbetsplats). Allt som kan stå (eller ställas) på hjul underlättar. Men bänkar/bord som det ska jobbas på räcker det inte att låsa hjulen, de bör stå "stumt", men hjul/dollys kan ju fixas så ett set kan användas för att flytta många saker. Palldragare är ju ett universalverktyg, om det är lite större ytor (och med rätt designade ben så kan mycket flyttas med två palldragare   )
						 | 
	||||
| 
			 
							Re:                                                          
					Kan även tillägga att idag är garaget inrett för 4 bilar idag, det är fyra platser längst ut. Hyllplan under toaletten och till vänster i hörnan är våra arbetsbord. Anledningen att lyften inte kan stå i dörrhålet är att lillebror har två bilar som inte får plats under lyften, så ska de ställas undan över vintern så får köra över liften för att kunna förvara den. Känns som just nu att jag inte gett alla förutsättningarna. Det brukar stå: Peugeot 306 (mindre projekt) VW bubbla (stort projekt) Ej rullbar VW T3 Pickup VW T3 Buss De två sistnämnda kommer och går utefter lillebrors behov. Bussen brukar vinterförvaras i garaget och pickupen är mer flytande vart den är. Vad vi vill få till: Få in lyften så den är användbar även om det finns ett långtidsprojekt som inte är flyttbart. Det finns även Pelarborr Pelarslip Tvättmussla Planerar att köpa en en rörbock men den kanske får stå i garaget hemma istället beroende på plats. 
 Absolut, det var tanken som fanns när de vi hyr av byggde det, men kostnaden sprang iväg så de fick skippa entresol. Möjligheten finns nog att sätta ett entresol ändå, men jag har inte kollat till vilket pris. Ytan bakom liften borde räcka för entresol och så kanske man kan ha liften till hjälp när man ska ha upp saker. 
 Fyrpelaren får nog bli stumt monterad, vet inte hur säker den är omonterad, men vi får nog ge det ett par veckor innan vi drar fast den i golvet så man kan justera lite. Vi har möjlighet att få med en liten höglyftare så vi kan flytta pallar, vi har även pallställ som vi skulle kunna ta också. Men det tar rätt mycket plats att dra runt en palldragare så just nu är jag lite osäker om det är värt det. _________________ Alex H-e-d-s-t-r-ö-m Tesla Model Y Performance -22 Peugeot 306 GTi -97 195hk@7900 195Nm@6500 VW 1500 baja -69 ( www.instagram.com/alexbajabug/ )  | 
	||||
| 
			 
							
							I byggbranschen brukar man säga att det ska vara 600 mm när en person ska passera. Med 800-hyllor hade jag försökt få till 800 mm framför...
						 
					_________________ Niklas "Nillet" Olsson | Westfield SEIW = NILLET RACING = https://www.ellensagentur.se https://www.cancerstiftelsen.se  | 
	||||
| 
			 
							Re:                                                          
					
 Hade absolut varit trevligt med lite mer plats, men jag får ca 1600-1700 på vänster sida om lyften, vilket ger utrymme för arbetsbänk, skåp eller hyllor längs väggen. Annars blir den ytan outnyttjad. Sen är det bara trångt vid pelarna, mellan pelarna kan man nog få närmre 800. Man kan ju ta bort en hylla där så kan man få en passage in istället för att trycka sig igenom på 400 mm. Passagen till vänster blir kombinerat arbetsområde så man får plats att stå vid ev bord/komma åt skåp. Började rita in lite mer, var skåp, arbetsbänk, maskiner, kompressor ska stå får nog ta och falla på plats när vi börjar ommöbleringen.  
						_________________ Alex H-e-d-s-t-r-ö-m Tesla Model Y Performance -22 Peugeot 306 GTi -97 195hk@7900 195Nm@6500 VW 1500 baja -69 ( www.instagram.com/alexbajabug/ )  | 
	||||
| 
			 
							Re:                                                          
					
 Nejdå! Tanken är att man antingen skickar upp lyften i toppen och kör under plattformen. Får nog bli att man backar in den, sen tar domkraften eller sätter hjuldollys på framhjulen och puttar in den. Man kan också flytta ramperna så kan man köra över lyften. _________________ Alex H-e-d-s-t-r-ö-m Tesla Model Y Performance -22 Peugeot 306 GTi -97 195hk@7900 195Nm@6500 VW 1500 baja -69 ( www.instagram.com/alexbajabug/ )  | 
	||||
| 
			 
							
							Kommer bli galen på att ha bilen stående så nära lyften, du kommer ju inte åt nånting runt det hörnet?
 
					Sen platsen för "extramek" är ju inte speciellt lång heller, trångt framför/bakom. _________________ /Mats Strandberg onemanracing.com BMW 330i -05  | 
	||||
| 
			 
							Re:                                                          
					
 Tar tacksamt emot andra förslag som gör det bättre. Det står alltid minst 3 bilar i garaget, 4 ska kunna köras in. En annan tanke är att skrota platsen vid toaletten för att kunna flytta bak liften lite till. Men då blir vi låsta att ha en bil på och en bil under lyften. Men pga det finns bilar som man kan "låsa in" så har den platsen varit lite intressant för att frigöra lyften. En annan tanke som flygit genom huvudet är att man tar och sätter bilen på tvären istället. Men det ger ju bara ca 1500 mellan bilen och väggen till vänster. Eller så har man extrabilen absolut längst ner till vänster. Men där är jag rädd att vi inte kommer kunna köra ut och in pga övriga inventarier. Platsen mellan porten och lyften har krympt sakta ner till måttet på 5500. Däremot är det ca 300 till liften och från väggen ut till porten (som sitter på utsidan) är det nog ca 200-300. Man jobbar troligen i en ända åt gången, byter spindelled, bromsar eller allmän service. Garaget kommer nog inte användas så mycket till stora projekt (tänk baja bug) känns det som just nu. Kommer behöva överväga att ta hem baja bugen och städa ur mitt garage hemma istället för att kunna arbeta vidare och ställer ner. Hur jag än gör så blir allt bara en stor kompromiss. _________________ Alex H-e-d-s-t-r-ö-m Tesla Model Y Performance -22 Peugeot 306 GTi -97 195hk@7900 195Nm@6500 VW 1500 baja -69 ( www.instagram.com/alexbajabug/ )  | 
	||||
| 
			 
							Re:                                                          
					
 Annars är ju tex en pelarborr bra att ställa mitt emot/för en lyftpelare. Då blir det bara trångt just när du står och borrar, övrig tid mer plats. _________________ Roland Johansson  | 
	||||
| 
			 
							Re:                                                          
					
 Det är det som vi kommit över och den har stått i mitt gamla garage de senaste 10 åren, som kommunen ska riva. Det finns även massa annat som däckkrängare, balanseringsmaskin, pallställ, blästerskåp och sånt som inte ska flyttas till detta garage. _________________ Alex H-e-d-s-t-r-ö-m Tesla Model Y Performance -22 Peugeot 306 GTi -97 195hk@7900 195Nm@6500 VW 1500 baja -69 ( www.instagram.com/alexbajabug/ )  | 
	||||
![]()  | 
		
			Andra projekttrådar
			 
			
			Planlösning i garaget
		 | 
		1 besök senaste veckan (1789 totalt) | 

